连云港201-300平米新中式风格案例

来源:名匠装饰|更新时间:2020-05-08
楼盘名称
所在城市连云港市
案例风格新中式风格
案例面积201-300平米
案例户型别墅
案例设计师张海芹

鸑抱云霞朝凤阙,鱼翻波浪化龙宫。自古以来文人墨客常常寄情山水之间,融情于吟诗作画之中,别墅装修公司的设计师把这种富有清闲雅趣的生活融入到新中式别墅大宅里面,与现在烦劳的都市生活相比,越来越多的人一直羡慕着前者那般诗意栖居生活。


新中式别墅大宅装修设计


设计风格:新中式风格

常住人口:6人
住宅面积:216m²(全屋面积)
设计门店:连云港名匠装饰
设计理念:生活源于细节,细节决定成败



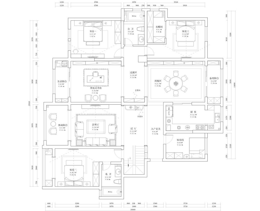
新中式别墅大宅装修设计-首层平面图

连云港201-300平米别墅新中式风格装修效果图


▲  首层平面图


新中式别墅大宅装修设计-首层布局图

连云港201-300平米别墅新中式风格装修效果图


▲  首层布局图

新中式别墅大宅装修设计-玄关

连云港201-300平米别墅新中式风格装修效果图


别墅玄关装修设计,从宽敞明亮的玄关开始,便迎面袭来轻奢雅趣的传统味道,玄关摆放一个简约木制桌案,搭配着绿植盆景,营造出自然的温和,上方两条锦鲤活灵活现,是对家一种美好的寄托。


转步至客厅之中,东方古韵款款而来,以简约的姿态摒弃传统造型的雍容繁重,沉闷刻板,反而这些现代化的理念带来了更加轻松惬意的体验感,古墨山水挥洒在大理石挑高背景墙上,给人一种满满的诗情画意,给人一种大宅之下的恢弘大气。

新中式别墅大宅装修设计-客厅

连云港201-300平米别墅新中式风格装修效果图


别墅客厅装修设计抽象的肌理感与沉稳的原木色奠定了空间的主调气质。设计师用一种自在安宁来展现新中式的魂调,用化境的形式移目换影融入其间。

新中式别墅大宅装修设计-客厅

连云港201-300平米别墅新中式风格装修效果图


别墅书房装修设计开放式的书房素净儒雅,亦浓亦淡;淡雅轻奢的大理石与浓郁的原木书柜书桌完美融合,设计师恰到好处的设计,糅合古今韵味,将大宅的清净雅致展现的淋漓尽致。

新中式别墅大宅装修设计-书房

连云港201-300平米别墅新中式风格装修效果图


别墅书房装修设计书房空间摈弃了浮华,隔绝了喧嚣,宁谧而悠然,流露出文人雅士的高级品味,书桌背后的木柜精美的分为多格,在灯光的照射下,古朴而又别具一格,相对墙面为避免过于空白带来的乏味,装裱山水画作,为空间带来更多静雅诗意。

新中式别墅大宅装修设计-书房

连云港201-300平米别墅新中式风格装修效果图


别墅餐厅装修设计餐厅的设计以简雅为意,贯穿现代材质的轻奢,于古韵雅致之中畅享空间氛围带来的舒适与惬意,大量的格子、柜子设计,方便收纳零碎物品,呈现出一派精致简单兼具品质的生活景象。

新中式别墅大宅装修设计-餐厅

连云港201-300平米别墅新中式风格装修效果图


通过自然元素带来的依靠感,坚强感,生机感,将整个空间塑造出沉稳安静的格调,散发舒缓的意境。


本案例设计师
张海芹

张海芹专家设计师 所属公司:连云港公司 从业经验:10年以上 案例作品:3套

百万家庭信赖之选

    立即获取装修报价 您所填写的信息将严格保密,请放心填写!

    推荐案例

    已有7209人获取装修报价

    点击预约

    400-808-6012